A Complete Guide to Phenolic Toilet Partitions

What are Phenolic Toilet Partitions?

Phenolic toilet partitions are known for being heavy duty and providing superior strength. This material is made for high traffic, humid, and full water contact commercial restroom environments. Phenolic toilet partitions are available in sophisticated colors and wood grain / pattern finishes. The material has a one-piece, solid, and compact core that provides superior strength and damage resistance in vandalism-prone environments. If you are seeking a heavy duty & waterproof toilet partition, then this is the correct material for you.

What are the Key Features to Know About Phenolic Toilet Partitions?

  • Durability: Phenolic toilet partitions are known for their exceptional durability. The phenolic resin compact laminate is highly resistant to impact, moisture, and vandalism. This makes them suitable for high-traffic areas where wear & tear are common.
  • Moisture Resistance: Phenolic toilet partitions have excellent moisture resistance due to the compact and dense nature of the material. This makes them ideal for environments with high humidity levels, such as restrooms and shower areas.

How Much Do Phenolic Toilet Partitions Cost?

Average price per stall is $961.

To receive a quote on your project, please email sales@partitionking.com or call 800-685-7541 to speak to an estimator. 

What Colors & Finishes are Available for Phenolic Toilet Partitions?

In stock & ships in 11 business days:

  • Almond
  • Folkstone
  • Fog
  • Storm
  • Black
  • Natural Canvas
  • Folkstone Celesta
  • Navy Grafix
  • Graphite Grafix

Custom colors & finishes, ships in 30 business days:

  • See all 55+ colors & finishes here

Request color samples here.

What are the Different Mounting Styles?

Overhead Braced: most popular!

  • Created for any commercial restroom facility where high strength is required to ensure a rigid and secure installation.
  • Anti-grip handrail is used for additional strength.
  • Overall height is 82 inches.

Floor Mounted: 2nd most popular!

  • Provides a spacious, consistent and flush appearance across the top of the panels and pilasters for a modern appeal.
  • Overall height is 70 inches.

Ceiling Hung:

  • Provides for unobstructed floor space beneath the toilet stalls.
  • Floor to ceiling pilasters can be added to provide maximum strength and durability.
  • Overall height is customized to your specifications.

Floor to Ceiling:

  • Attaches to the floor, ceiling and walls for ultimate stability.
  • Maximum resiliency to abuse and provides extra durability.
  • Overall height is customized to your specifications.

What are the Different Privacy Height Options?

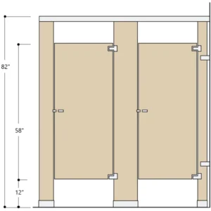
Standard Privacy: most popular!

  • 58 inch high doors and panels
  • 12 inches off the floor
  • Most economical cost
  • Ships in 2 weeks

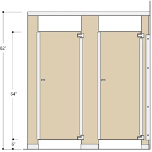
Medium Privacy:

  • 64 inch high doors and panels
  • 6 inches off the floor
  • Includes no-peek doors (privacy strips for no peeking) and full length brackets
  • Cost is 20% more than standard
  • Ships in 6 weeks

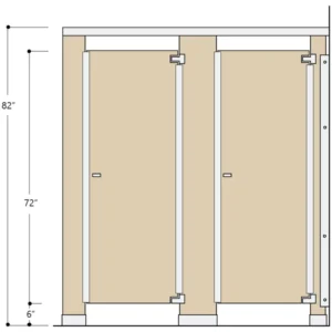
Ultimate Privacy: 2nd most popular!

  • 72 inch high doors and panels
  • 6 inches off the floor
  • Includes no-peek doors (privacy strips for no peeking) and full length brackets
  • Cost is 27% more than standard
  • Ships in 6 weeks

Why Should I Buy Phenolic Toilet Partitions?

Phenolic toilet partitions are extremely heavy duty, strong, and completely water resistant. This material has a black core, is rock solid throughout, and is ideal for high traffic environments that are prone to vandalism. The downsides of this material are the higher cost and longer production lead time as all items are not in stock and are made to order.

To receive a quote on your project, please email sales@partitionking.com or call 800-685-7541 to speak to an estimator.

 

                

 

Get a Quick Quote Now

How can I get a quote for commercial bathroom stall partitions?

Partition King makes getting a quote for commercial bathroom stall partitions easy. We provide shop drawings, color charts, technical documents, and an invoice with every quote. Our quotes are provided for free and returned within a few hours of your request.

To get a quick quote for commercial bathroom stalls, use one of the following options:

  1. Email your drawing/layout to sales@partitionking.com or upload them here.
  2. Call or Text us at 800-685-7541
  3. Live Chat with an estimator (chat box in bottom right corner).
  4. Download a blank template, fill it in, and email or text it to us.
  5. Build your own layout with our layout designer.

Be sure to include your material of choice and your shipping zip code with your request.